2025跑狗图高清大图,二四六天天免费开好彩,港彩码王港彩资料app下载,儿童脑筋急转弯2000题,246二四六费资枓大全

欢迎访问启东春立机械设备有限公司官网!
邮箱地址:cl@qdclgs.com
C2H2V/N型内外筒式乙炔回火防止器
1、产品用途
内外筒式乙炔回火防止器为防爆产品。适用于乙炔气(或其它可燃气体)管道中间和乙炔气用户点,能有效防止和消除管道回火。其原理是:在产生管道回火的情况下,(1)由于瞬时压力升高时使位于底部的阀芯下落堵位气口及时切断气源;(2)当瞬时压力升高到大于0.177~0.275MPa时,设置在筒体顶部的安全膜片爆破随即泄压,切断火源,确保系统安全。对于乙炔气或其它液化气的供应单位和使用单位来说,如果还没有其它能有效防止回火措施的话,本产品应是不可缺少的。
2、结构特点
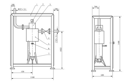
2.1内筒体顶端为安全膜盖结构,当系统压力升至0.177~0.275MPa时膜片会自动爆破泄压。因此用户在调换膜片时,不得使用厚度超过0.05的铝板,且一定要经过试验后才能安装。
2.2内外筒体具有贮气,稳压作用,能减少供气压力的波动,有利于平稳燃烧。
2.3本产品在使有用前应拧开水位阀芯,从孔口灌水至溢出即拧紧,不得漏气和漏水,灌水具有防止回火和清选 气体的作用。
3、产品外形尺寸及部件名称见下图
4、主要技术参数
公称通径(mm)
DN25
设计压力(MPa)
PN0.15
使用压力(MPa)
PN0.02~0.12
使用温度(℃)
常温
流量(Nm3/h)
35
爆破压力(MPa)
PN0.177~0.275
重量(kg)
220
 说明:连接法兰按JB/T81-94设计制造,用户如需选用其它标准和规格的连接法兰,请在订货中说明。
 
主站蜘蛛池模板: 澳门资料码| 2023年澳门正版资料全新| 呖咕呖咕新年财| 全球体育赛事| 刘伯温资料大全免费查看最新玄机| good电影屠夫网| 2024管家婆正版今晚开奖结果| 2023澳门历史开奖记录完整版一| 郑州昨晚的雨有多大| 澳门青龙报资料全新财富三码中特 | 2024澳门天天开好彩大全开奖记录127期 | 综合症与一百年| 滚滚红尘电视剧全集在线观看| 成人成人用品排行榜| 刺杀据点在线观看免费高清完整版| 豪江论坛一肖一码| 2024新奥开奖结果查询官网| 免费的追剧软件不用vip| 澳门香港开彩开奖+结果2021历史| 2024澳门历史开奖记录查询表格| 新澳门六开彩资料大全2248| 澳门开奖结果+开奖结果2024年| 澳门118开奖现场开奖直播现场| 澳门六开奖网站大全| 特别好玩的网络游戏| 2022韩国三部顶级电影| 新澳门免费资料2024| 新澳码开奖| 澳门精准金牛版| 澳门123手机看最快开奖现场| 2022澳门精准四不像正版| 24自助成人用品店| 澳门一肖期期准中选料1| 澳门资料网址大全| 新澳门6合和彩查询| 听说你喜欢我电视剧在线观看免费| 澳门开奖123网| 波多野电影网| 246新免费资料大全| 电影爱人韩国| 买12生肖马的网站|