2025跑狗图高清大图,二四六天天免费开好彩,港彩码王港彩资料app下载,儿童脑筋急转弯2000题,246二四六费资枓大全

欢迎访问启东春立机械设备有限公司官网!
邮箱地址:cl@qdclgs.com
 
T型过滤器

产品概述

过滤器是除去液体中少量固体颗粒的小型设备,可保护压缩机、泵、仪表和其它设备的正常工作,当流体进入置有一定规格滤网的滤筒后,其杂质被阻挡,而清洁的滤液则由过滤器出口排出,当需要清洗时,只要将可拆卸的滤筒取出,处理后重新装入即可,因此,使用维护极为方便。本公司生产的过滤器具有结构紧凑、过滤能力大、压损小、适用范围广、维护方便、价格低廉等优点,其主要适用的物料有:化工、石油化工生产中弱腐蚀性物料,如:水、油品、氨、烃类等。化工生产中的腐蚀性物料,如:烧碱、纯碱、浓稀硫酸、碳酸、醛酸等。制冷中的低温物料,如:液甲烷、液氨、液氧和各种冷剂。食品、制药生产中有卫生要求的物料,如:啤酒、饮料、乳制品、糖浆等。

型号标注

本公司生产的管道过滤器,主要有:1、Y型过滤器  2、T型过滤器  3、篮式过滤器 4、临时过滤器  5、气体过滤器。    其型号标注如下:

2、T型过滤器
             
(1)T型对焊连接直通式过滤器(PFT-W型)(DN50~400,PN≤5.OMPa)
(2)T型法兰连接直通式过滤器(PFT-F型)(DN50~400,PN≤5.OMPa)

PFTI—W、PFTI—F型

DN
TI-W型
TI-F型
N
L
DO
H
L
H
系列A
系列B
50
128
60.3
57
175
230
170
Rc3/8
65
152
76.1
76
195
260
170
80
172
88.9
89
210
290
180
100
210
114.3
108
230
350
200
125
248
139.7
133
310
390
230
150
286
168.3
159
335
435
250
Rc3/4
200
356
219.1
219
400
540
310
250
432
273
273
450
640
370
M20×1.5
300
508
323.9
325
535
745
425
350
558
355.6
377
580
800
460
400
610
406.4
426
640
900
520


注:用户在订货时请注明三通壁厚系列
(3)T型对焊连接折叠直通式过滤器(PFTM I—W型)(DN200—500,PN≤5.0MPa) PFTMI-W型

DN
DO
L
H
N
系列A
系列B
200
219.1
219
356
380
M20×1.5
250
273
273
432
520
300
323.9
325
508
580
350
355.6
377
558
700
400
406.4
426
610
760
500
508
529
762
920


(4)T型对焊连接正折流式过滤器(PFT II—W型)(DN50~400,PN≤5.OMPa)
(5)T型对焊连接反折流式过滤器(PFT III—W型)(DN50~400,PN≤5.OMPa)

PFT II—W,PFT III—W型

DN
DO
L
H
L1
N
系列A
系列B
50
60.3
57
300
64
165
Rc3/8
65
76.1
76
340
76
185
80
88.9
89
370
86
195
100
114.3
108
425
105
220
125
139.7
133
465
124
240
150
168.3
159
520
143
270
Rc3/4
200
219.1
219
630
178
320
250
273
273
740
216
370
M20×1.5
300
323.9
325
845
254
420
350
355.6
377
910
279
450
400
406.4
426
1040
305
520


(6)T型法兰连接正折流式过滤器(PFT II—F型)(DN50~400,PN≤5.OMPa)
(7)T型法兰连接反折流式过滤器(PFT III—F型)(DN50~400,PN≤5.OMPa)
  PFI II—F型,PFT III—F型

DN
L
H
L1
N
50
300
165
165
Rc3/8
65
340
185
185
80
370
195
195
100
425
195
220
125
465
195
240
150
520
215
270
200
630
270
320
Rc3/4
250
740
320
370
300
845
370
420
M20×1.5
350
910
400
450
400
1040
450
520


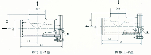
(8)T型异径对焊连接正折流式过滤器(PFTDII—F型)(DN50X40~300×X250,PN≤10.OMPa)
(9)T型异径对焊连接反折流式过滤器(PFTDIII—F型)(DN50X40~300×250,PN≤10.OMPa)

PFTD II—W,PFTD III—W型

DN1×DN2
DN1×DN2
L2
L3
L1
N
系列A
系列B
PN2.0
PN2.5
PN4.0
PN5.0
PN10.0
50×40
60.3×48.3
57×45
64
60
213
202
202
222
228
Rc3/8
80×50
88.9×60.3
89×57
86
76
268
216
263
282
289
80×65
88.9×76.1
89×76
86
83
268
261
263
282
289
100×65
114.3×76.1
108×76
105
95
312
304
314
330
352
100×80
114.3×88.9
108×89
105
98
312
304
314
330
352
150×100
168.3×114.3
159×108
143
130
402
392
394
423
453
Rc3/4
200×100
219.1×114.3
219×108
178
156
489
469
487
510
546
250×150
273×168.3
273×159
216
194
566
550
579
599
649
250×200
273×219.1
273×219
216
203
566
550
579
599
649
M20×1.5
300×250
323.9×273
325×273
254
241
656
632
670
691
732

 


主站蜘蛛池模板: 2022年新出的网络游戏 | 香港6合宝典最新开奖| 免费追剧软件不要vip超清| 新澳门最准开奖记录| 澳门六叔公精准12码| 新澳管家婆资料2023大全| 成人用品代发货平台有哪些| 新澳门最新版资料| 秋蝉电视剧在线观看免费高清 | 2024年澳门最准一肖一码必中 | 香港开奖结果+开奖记录777766 | 澳门三肖三码免费精准| 澳门2023年49图库资料| 4949澳门开奖号码| 2020年澳门开奖号码| 纽约客的故事大结局| 官家婆必中一肖一鸣| 澳门期期准四肖一码| 大红包在线观看高清完整版免费| 暗夜与黎明电视剧在线观看高清| 澳门马开奖结果+开奖结果生肖表| 九龙图库网址大全| 澳门料大全+正版资料今天的今天开奖的 | www.好看电影网| 俄媒称朝高官访俄时溺水遇难 | 成人性感性趣用品| 体育生怎么复读| 死亡笔记前篇| 2023澳门六和彩资料查询| 吸血家族汤普森| 澳门管家婆100%精准天天| 巷彩近15期历史开奖结果| 香港二四六天天开奖免费资料观看| 南大体育类核心期刊| 澳门六澳门六网站资料查询| 天天彩澳门资料免费大全年| 不用钱的网络游戏| 876161天天开奖| 六码中特在线听| 管家婆大三巴123资料| 管家婆一码中一肖更新中日期|